Chantier M. DE HAUT
Description de l'article de blog :
4/29/20251 min read
Emplacement de la clef 🔑 à remettre en place chaque jour.
Localisation
GOOGLE MAP
OBSERVATION :
Couper le compteur chaque soir.
Stationner le véhicule le plus au fond possible de la zone prévue.
S’assurer que le chantier est parfaitement fermé en fin de journée.
Il est impératif soit de cacher la clé et d’indiquer son emplacement aux autres collaborateurs, soit de la transmettre directement à un collaborateur.

INFORMATIONS
Écrivez votre texte ici ...
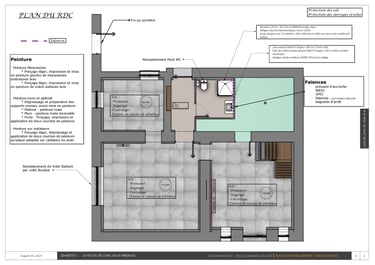
PLANS









AUTRES DOCUMENTS
DESCRIPTIF DES TRAVAUX






















